Maison à La Roche-sur-Yon dans un quartier calme

Surface
maison 82,26 M2

Surface
terrain 585 M2

Nombre de
chambres 3

Présence
garage oui

266 167 €

Description de l'annonce

Situation

Dans un rayon d’1 km, vous trouverez un centre commercial, des complexes sportifs, des écoles, collège et lycées ainsi que tous les commerces de proximité.

Votre nouvelle maison, située au cœur d’un quartier calme et à proximité immédiate des commodités. La Roche-sur-Yon est une ville moderne et dynamique, marquée par une architecture urbaine distinctive et une vie culturelle vibrante.

 

Votre maison neuve clés en main

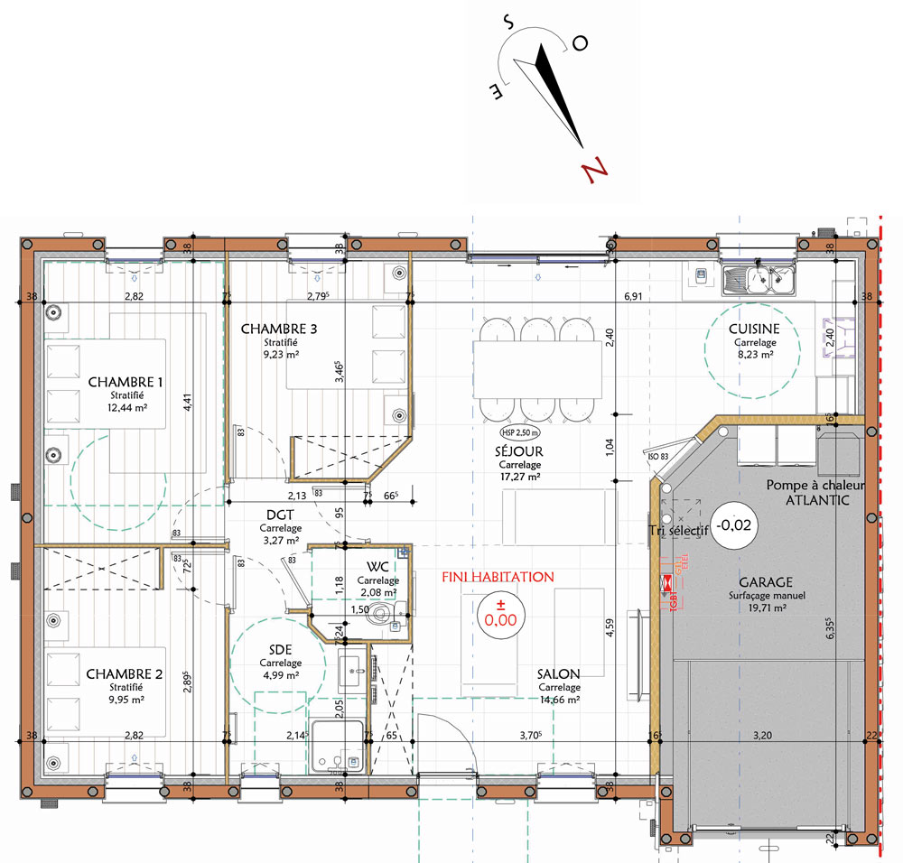
La maison comprend :
• Une pièce de vie de 40 m²,
• Une baie vitrée coulissante en aluminium,
• 3 chambres de 9.11 m², 9.97 m² et 12,44 m²,
• WC indépendant,
• Une salle d’eau de 5 m²,
• Un garage de 19,8 m²,
• Chauffage air/air avec système split (climatisation) dans la pièce de vie.

Prestations incluses dans le prix :
• Volets roulants électriques avec système domotique pour un pilotage à distance,
• Menuiseries blanches,
• Porte de garage basculante,
• Porte d’entrée en acier,
• Revêtements de sol (carrelage et parquet stratifié dans les chambres),
• Peintures (murs, plafonds, portes),
• Équipement sanitaire (receveur extra-plat, WC posé, meuble vasque simple avec miroir et éclairage LED, robinetterie HANSGROHE).

Cette maison est une proposition, nos plans restent 100% modifiables, le prix pourra varier en fonction des modifications et des fondations imposées par l’étude de sol.

Pour plus d’informations, contactez Arthur ROUSSEAU, chargé d’affaires au sein du Groupe SATOV.

Les informations sur les risques auxquels ce bien est exposé sont disponibles sur le site Géorisques : www.georisques.gouv.fr

Réf. : AR-CotonLCosy-Brossardiere225

Les atouts du bien

  • Accès voie rapide
  • Écoles
  • Commerces et services
  • Secteur calme

Plan de la maison

Localisation

Cette maison m'intéresse !

Découvrez le bien en photo

Ce bien vous
intéresse ?Contactez-nous !

Agence de Challans

Agence de référence

Agence de Challans

2 boulevard Schweitzer – 85300 Challans

Tél. : 02 51 26 91 91

Voir l'agence